1800mm × 1200mm Standard Door
Material Thickness 1.8mm
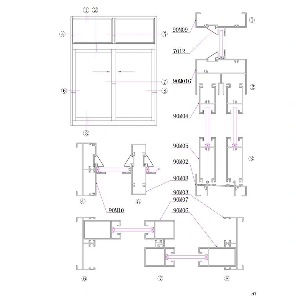
A=1800mm B=1200mm C=600mm D=1200mm

| Name | Model | Formula | Length (mm) |
Weight (kg/m) |
Quantity | Sum (kg) |
|---|---|---|---|---|---|---|
| Side Seal | 90M03 | A | 1800 | 1.088 | 2 | 3.917 |
| Fixed Upper Sash Rail | 90M09 | B-23.6 | 1176.4 | 0.856 | 1 | 1.007 |
| Fixed Upper Sliding Rail | 90M01G | B-23.6 | 1176.4 | 1.853 | 1 | 2.180 |
| Lower Sliding Rail | 90M02 | B-23.6 | 1176.4 | 1.131 | 1 | 1.331 |
| Clamping Plate | 90M10 | C-25 | 575 | 0.576 | 2 | 0.662 |
| Sash Stile | 90M06 | D-53 | 1147 | 1.001 | 2 | 2.296 |
| Sash Stile | 90M07 | D-53 | 1147 | 1.009 | 2 | 2.315 |
| Upper Frame Rail | 90M04 | B/2-68.3 | 531.7 | 0.791 | 2 | 0.841 |
| Lower Frame Rail | 90M05 | B/2-68.3 | 531.7 | 1.038 | 2 | 1.104 |
| H-Bead | 7012 | B-67.6 | 1132.4 | 0.077 | 2 | 0.174 |
| V-Bead | 7012 | C-25 | 575 | 0.077 | 2 | 0.089 |
| Total Weight | 1.8m × 1.2m =2.16m2 | 15.916 | ||||
| Average Weight | (kg/m2) | 15.916/2.16=7.37 | ||||
We mainly offer three categories: construction profiles (for doors, windows, curtain walls), industrial profiles (for automation equipment, radiators), and decorative profiles (for furniture, display racks). We provide common alloy grades like 6061, 6063, and 6005, and can also produce according to international standards such as ASTM, DIN, and GB.
The MOQ for standard profiles is 500kg per model. For custom profiles, due to different mold costs, the MOQ is usually 1000-2000kg. If you need a small trial order, you can contact our sales team to discuss a special support plan.
Yes. You only need to provide 2D/3D drawings (with dimensions, tolerances, and surface treatment requirements marked) or physical samples. Our engineers will complete the feasibility assessment within 3 working days and provide the mold production cycle and quotation.
Mold making lead time: 7-10 working days for regular extrusion molds, and 12-15 working days for complex molds (such as multi-cavity or special-shaped ones). Mass production lead time: After mold confirmation, the mass production cycle is 10-15 working days (excluding surface treatment time).
Our products have passed the ISO9001 quality management system certification, and some products can meet the requirements of CE, SGS, ROHS and other certifications. We will provide third-party test reports (including mechanical properties, chemical composition, and dimensional tolerances) for each batch of goods before delivery. We also support re-inspection by customer-designated institutions.
Regular surface treatments include anodizing (salt spray resistance test ≥1000 hours), electrophoretic coating (≥1500 hours), powder coating (≥2000 hours), and fluorocarbon coating (≥4000 hours). We can recommend a suitable solution based on your application scenario (such as coastal areas or high-temperature environments).
We default to FOB delivery at major ports such as Qingdao, Shanghai, Guangzhou, and Shenzhen, and can also provide quotations based on terms like CIF and DDP. Logistics costs can be agreed upon according to trade terms. If you have a long-term cooperative freight forwarder, we can also coordinate with them.
We use standard export packaging: the inner layer is wrapped with PE film, the outer layer is fixed with cardboard or wooden pallets, and buffer foam is added between each bundle of profiles. This packaging solution has passed multiple sea transportation tests, which can effectively reduce the risk of transportation deformation. If damage occurs due to packaging after arrival, we will bear the responsibility of replenishing the goods.
Please take photos to record the problem and contact the sales team within 7 working days after receiving the goods. We will arrange a dedicated person to verify it within 3 working days. After confirming that it is our responsibility, we will provide three solutions: free replenishment, discounted refund, or rework, to minimize your procurement losses.
We can provide 1-2 pieces of samples (30-50cm in length) for standard profiles for free, and you only need to bear the courier fee. For custom samples, a small mold fee is required (which can be fully refunded after bulk ordering). The sample delivery time is 3-5 working days after confirming the requirements, and we usually ship via DHL or FedEx by default.